Floor Area (m²)

Bedrooms

Bathrooms

Land Area (m²)

Contemporary Townhouses in Christchurch

Note: Units 1, 2 and 4 have sold. Unit 3 is still for sale.

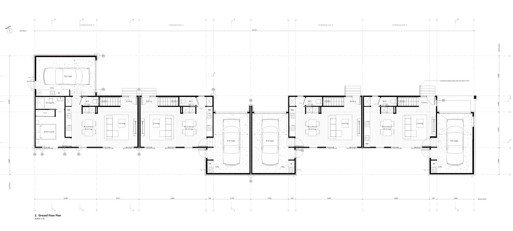
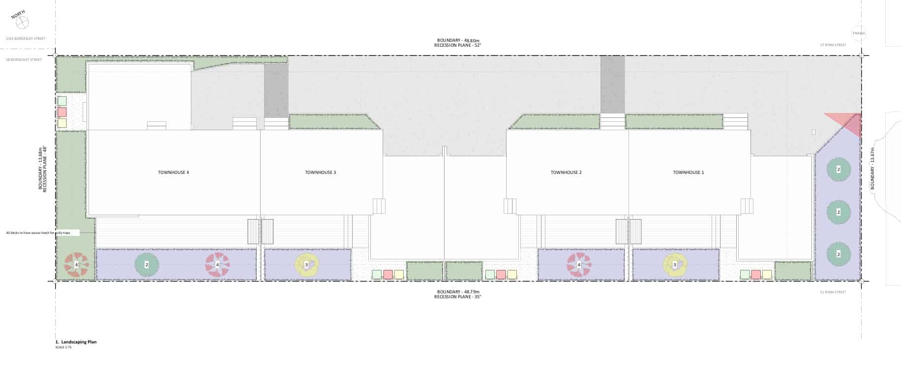
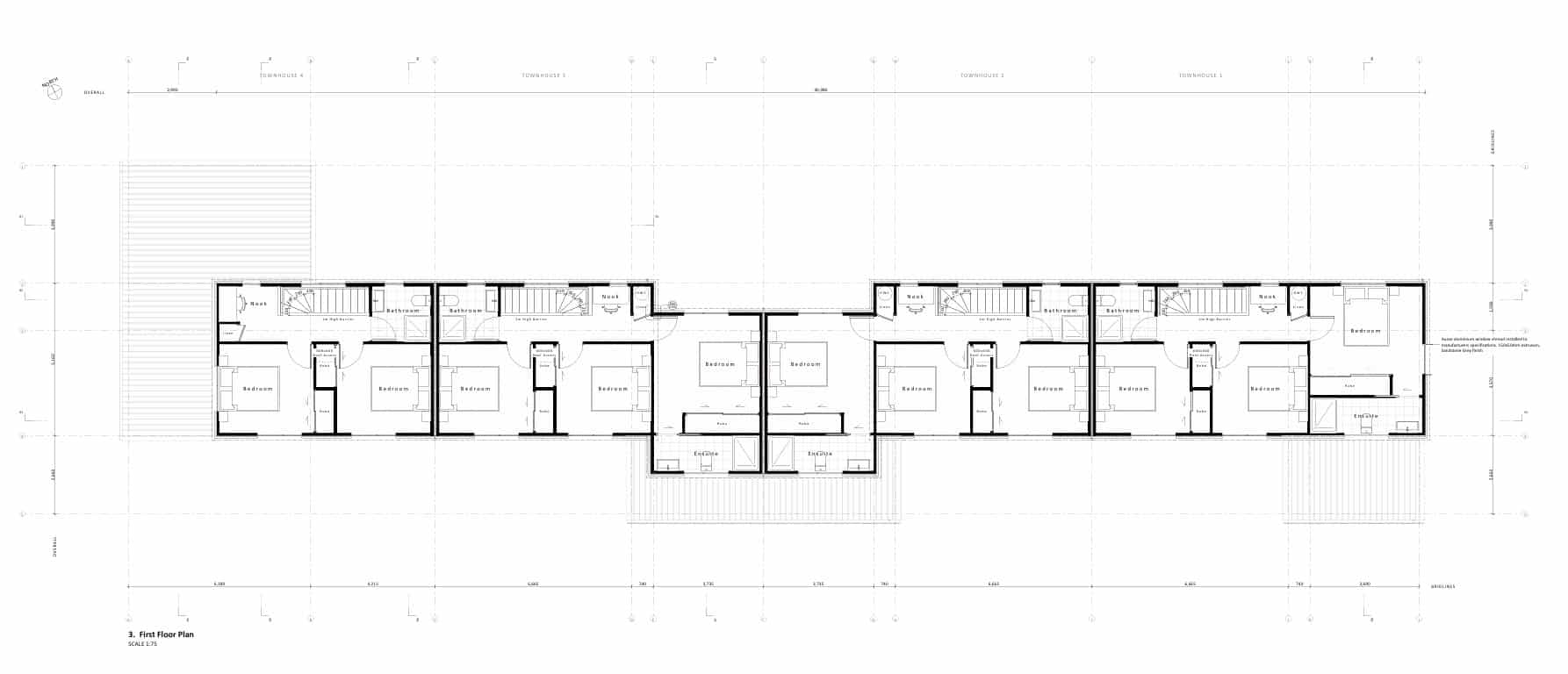
Consent has been granted for an exciting new residential project in Phillipstown, featuring four architecturally designed two-storey contemporary townhouses in Christchurch. Each home includes 2 to 3 bedrooms, 1.5 bathrooms, and the convenience of an internal access garage, making them an excellent option for modern urban living. Situated on a 667m² site, with a total building area of 267m², the development has been thoughtfully designed to maximise space, functionality, and lifestyle appeal. The layout offers a perfect balance of privacy and connectivity, ideally suited to professionals, small families, or investors.

Property Details

Address


53 Ryan Street, Phillipstown, Christchurch 8011

Property Type


Four contemporary two-storey townhouses

Floor Area


Three units are 122m² and one unit is 117m²

Land Area


667m²

Bedrooms


3

Bathrooms


2.5

Garages


1

Car Parks


0

Enquire About Contemporary Townhouses in Christchurch