Floor Area (m²)

Bedrooms

Bathrooms

Land Area (m²)

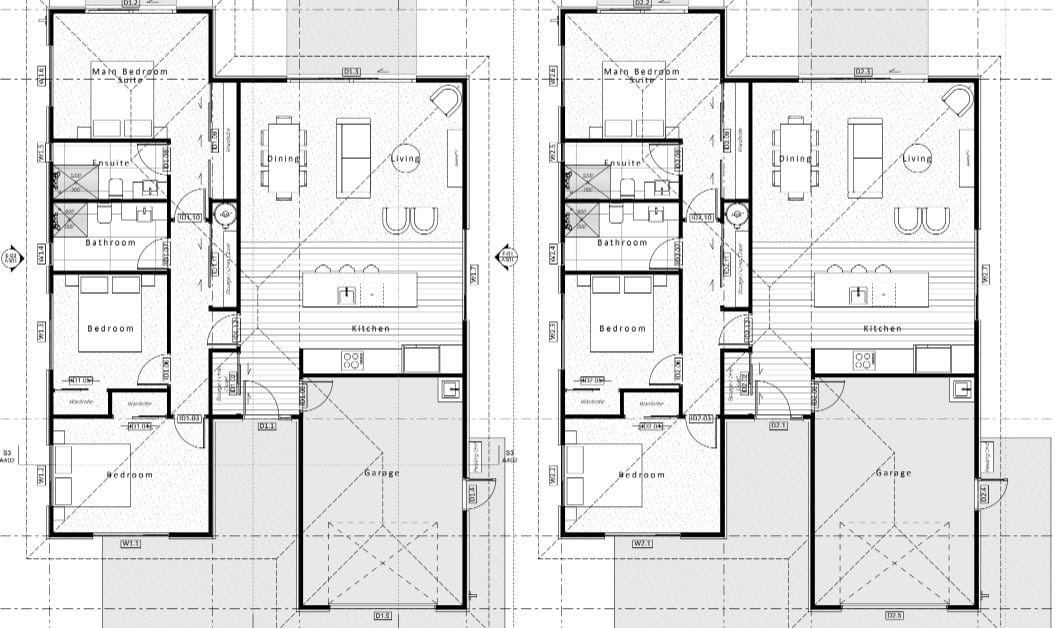
Two Family Homes in Ashburton

We’re excited to be bringing two brand new family homes to this spacious 1,118m² section in Ashburton. Each home will be 140m² and designed for easy, modern living — featuring 3 bedrooms, 2 bathrooms, and a light-filled open-plan layout. A great spot for families to settle in and enjoy everything this community has to offer.

Property Details

Address


223 Dobson St, Ashburton

Property Type


Two family homes on large sections

Floor Area


140m²

Land Area


1118m²

Bedrooms


3

Bathrooms


2

Garages


1

Car Parks


Enquire About Family Homes in Ashburton