Floor Area (m²)

Bedrooms

Bathrooms

Land Area (m²)

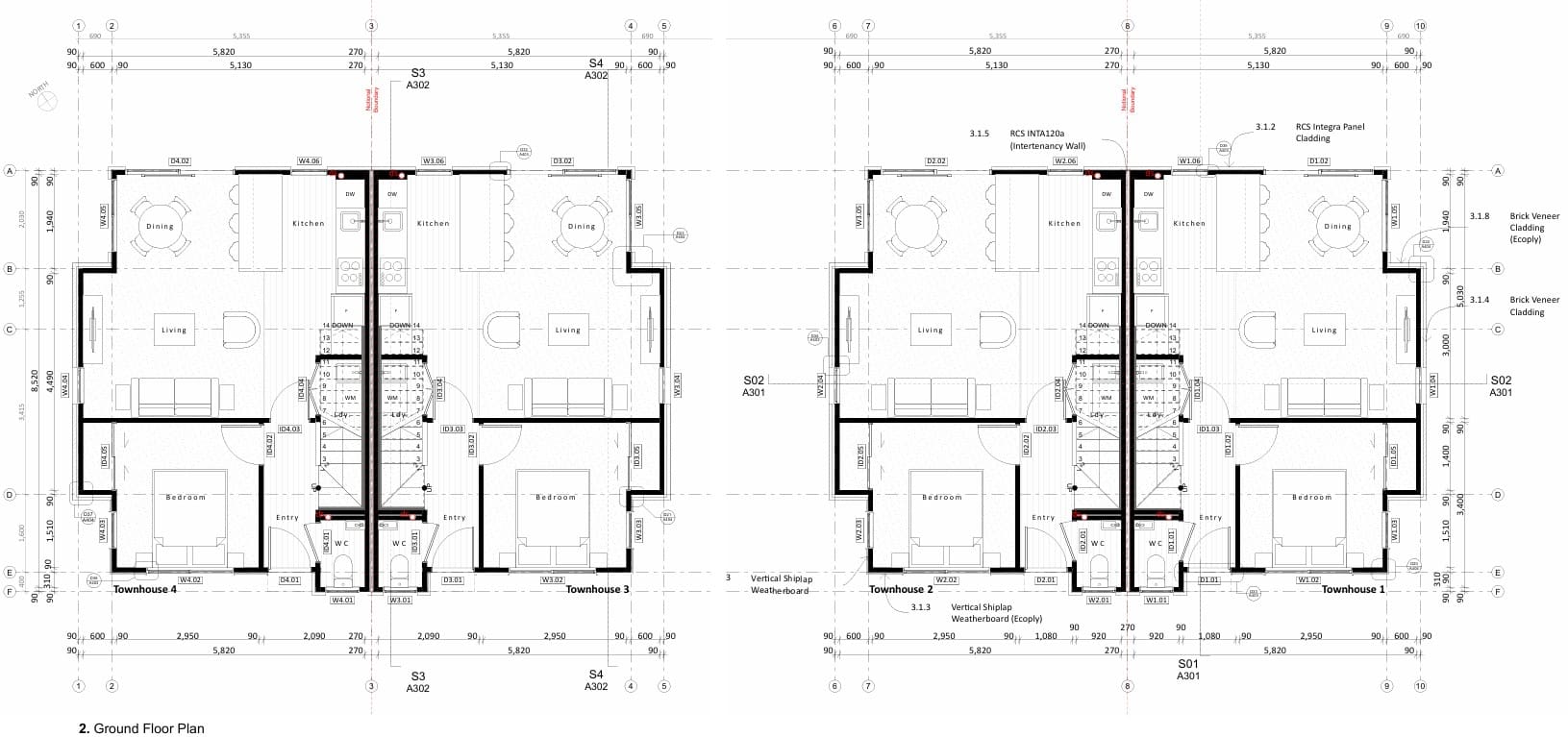
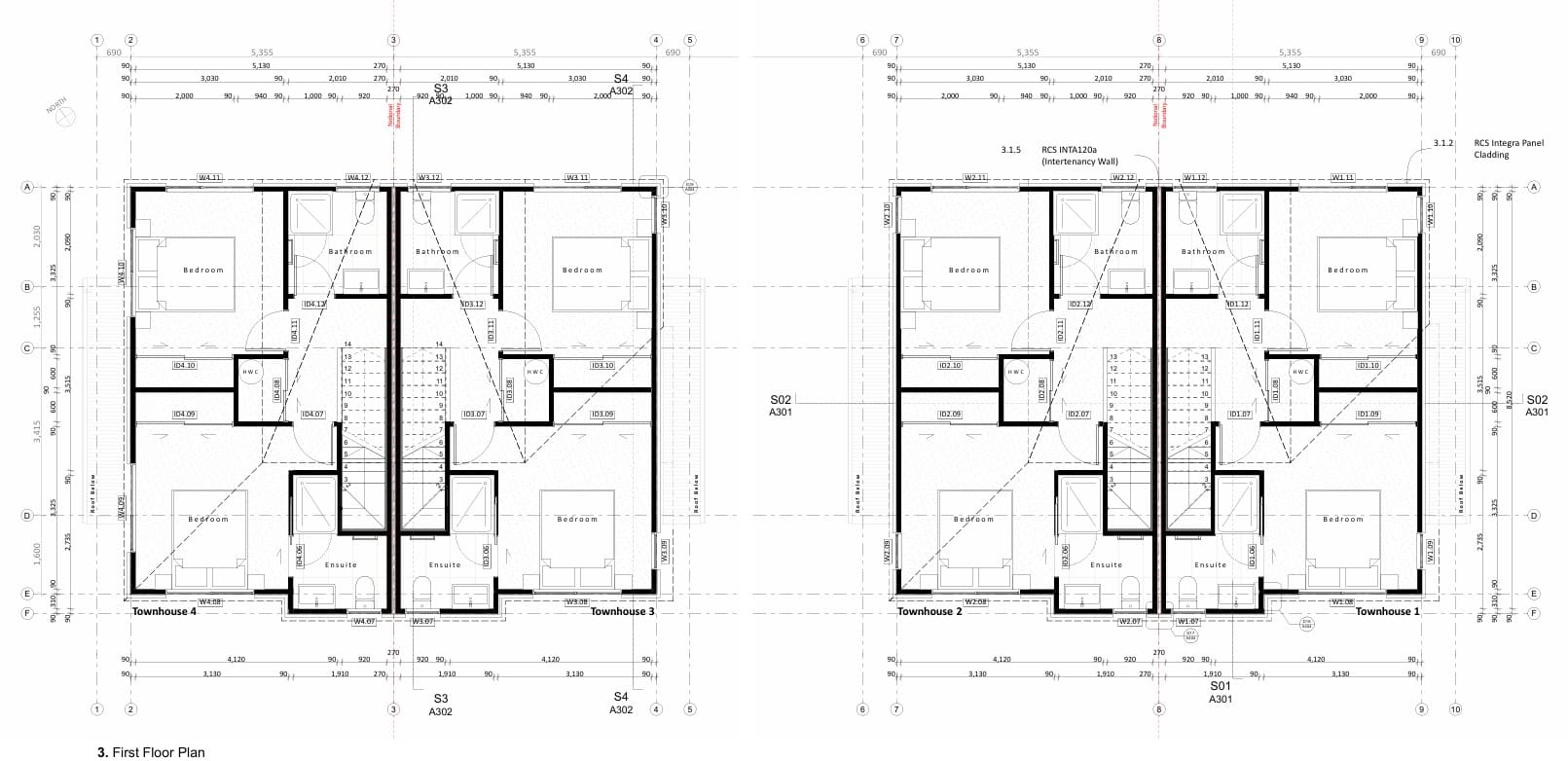
Modern Townhouses in Christchurch

Style meets function in these stunning modern townhouses in Christchurch, a perfect blend of contemporary design and comfortable living. These townhouses in Phillipstown are close to the city centre, family-friendly activities, a shopping centre and public transport. This project comprises four 93m2 townhouses, offering three bedrooms, along with 2.5 bathrooms and a master ensuite, landscaping, and an allocated off street carpark.

Property Details

Address


1-4/175 Aldwins Road, Phillipstown, Christchurch 8062

Property Type


Multi-unit townhouses, 4 units in total.

Floor Area


All units are 93m²

Land Area


Between 132m² and 174m²

Bedrooms


3

Bathrooms


2.5

Garages


0

Car Parks


1

Enquire About Modern Townhouses in Christchurch