Floor Area (m²)

Bedrooms

Bathrooms

Land Area (m²)

Multi-Unit Residential Development

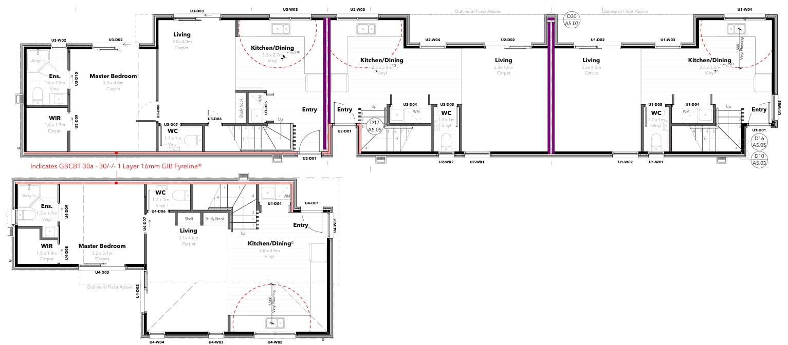
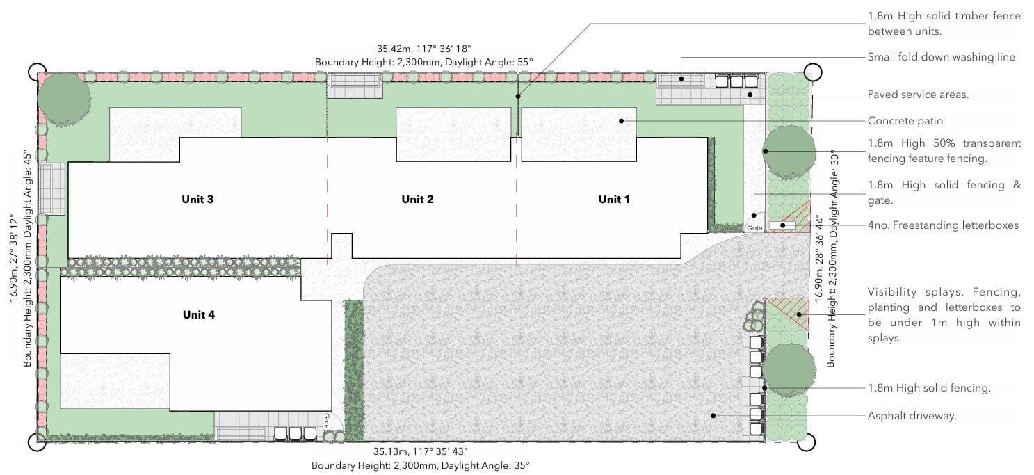
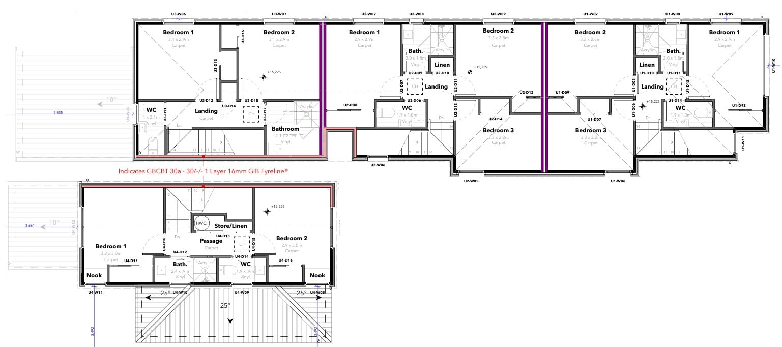
This multi-unit residential development project was completed in December 2024. These townhouses in Phillipstown are close to the city centre, family-friendly activities, a shopping centre and public transport. This project comprises four townhouses, offering three bedrooms, along with 1.5 to 2.5 bathrooms, a private courtyard, landscaping, and an allocated off street carpark.

Property Details

Address


139 Aldwins Road, Phillipstown, Christchurch 8062

Property Type


Multi-unit residential, 4 units in total.

Floor Area


Two units are 80m² and two units are 90m²

Land Area


595m²

Bedrooms


3

Bathrooms


2.5

Garages


0

Car Parks


1

Enquire About Multi-Unit Residential Development