Floor Area (m²)

Bedrooms

Bathrooms

Land Area (m²)

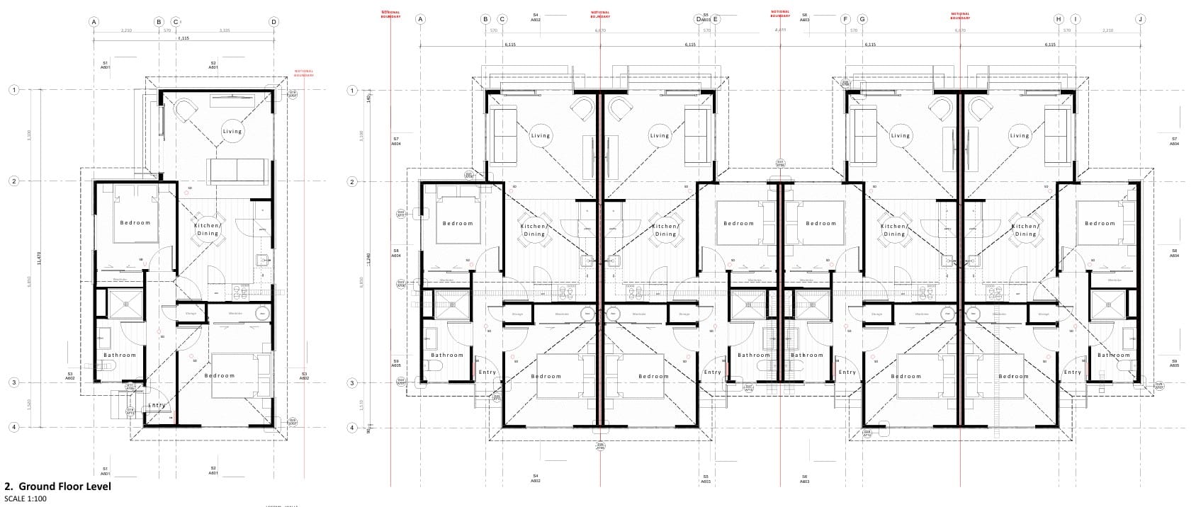
Single-storey Residential Units in Woolston

A new residential development is currently in the planning stage for the suburb of Woolston, featuring five well-designed single-storey units. Each unit will offer two bedrooms, one bathroom, and off-street parking, catering to a range of residents including downsizers, first-home buyers, and small households. Located on an 842m² site, the project proposes a total building area of 297m², aiming to deliver a balance of efficient land use and quality living spaces while complementing the existing neighbourhood character. This development is in the pre-consent phase, with further updates to follow as planning progresses.

Property Details

Address


88 Saint Johns Street, Woolston, Christchurch 8062

Property Type


Five single-storey residential units

Floor Area


Four units are 59m² and one unit is 61m²

Land Area


842m²

Bedrooms


2

Bathrooms


1

Garages


0

Car Parks


1

Enquire About Residential Units in Woolston