Floor Area (m²)

Bedrooms

Bathrooms

Land Area (m²)

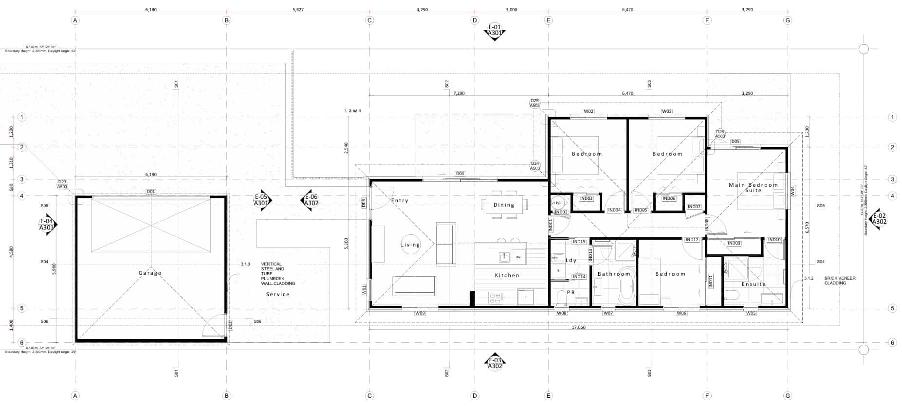
Subdivision New Family Home

Our clients subdivided their section, and engaged us to relocate the existing garage and demolish the existing shed to make way for constructing their four bedroom new build family home.

Property Details

Address


187a Pine Avenue, South New Brighton, Christchurch 8062

Property Type


Brand new family home

Floor Area


110m²

Land Area


449m²

Bedrooms


4

Bathrooms


2.5

Garages


2

Car Parks


1

Enquire About Subdivision New Family Home