Floor Area (m²)

Bedrooms

Bathrooms

Land Area (m²)

Two-storey Townhouses in Linwood

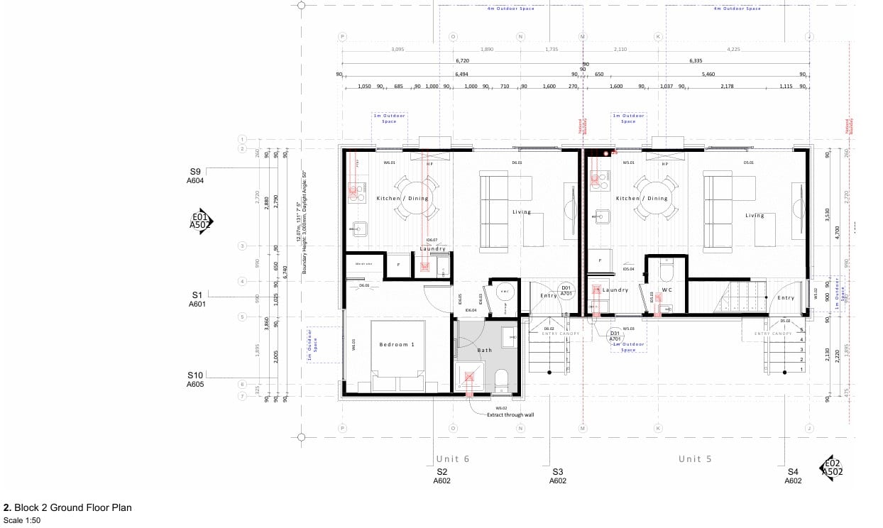
An exciting new development is coming to the heart of Christchurch! This fully consented project features six modern townhouses in Linwood. Each with 2 bedrooms and 1.5 bathrooms, these homes offer smart, contemporary living ideal for families, professionals, or investors. Set on a 606m² site with a total building area of 382m², this project combines efficient land use with stylish, functional design. Located in a well – established suburb close to amenities, transport links, and schools, this is a standout opportunity in a growing Christchurch neighbourhood. With plans approved, the project is now moving toward the construction phase. Further updates, including timelines and sales opportunities, will be available soon.

Property Details

Address


54 Rhona Street, Linwood, Christchurch 8062

Property Type


Six modern two-storey townhouses in Linwood

Floor Area


Four units are 76.5m², one unit is 61m² and one unit is 43m²

Land Area


TBCm²

Bedrooms


1-2

Bathrooms


1.5

Garages


0

Car Parks


0

Enquire About Townhouses in Linwood